- Plaats
- Borne
- Adres
- Trompstraat 7
- Postcode
- 7622 JB
- Plaats
- Borne
- Type
- Twee onder één kapwoning
- Bouwjaar
- 1968
- Woonoppervlakte
- 101 m2
- Aantal kamers
- 5
- Energieklasse
- A++
- Koopprijs
- € 440.000,- k.k.
Deel deze woning!
Zie jij jezelf hier wel wonen?
Leuk! Wij gaan graag met je kijken.
Meer over deze woning
In woonwijk ’t Wensink Zuid in Borne staat deze ruime helft van dubbel met een eigen oprit, een verlengde garage en een overkapping in de achtertuin.
De woning ligt in een rustige en kindvriendelijke straat met voornamelijk bestemmingsverkeer. Voorzieningen zoals winkels, basisscholen, sportaccommodaties en het NS-station bevinden zich op korte afstand. Daarnaast zijn uitvalswegen richting Hengelo, Almelo en Enschede snel bereikbaar. De woning is gebouwd in 1968 en staat op een perceel van 258 m².
Indeling
Begane grond
Via de entree kom je in de hal met meterkast, trapopgang en toegang tot het moderne toilet (2020). De tuingerichte woonkamer is voorzien van grote raampartijen en een schuifpui naar de achtertuin. De begane grond is voorzien van vloerverwarming. Aan de voorzijde bevindt zich de moderne keuken (2020), uitgevoerd in een eigentijdse opstelling met diverse inbouwapparatuur.
Eerste verdieping
Op de eerste verdieping bevinden zich drie slaapkamers en de badkamer. De badkamer is compleet uitgevoerd met een inloopdouche, toilet, wastafel en wastafelmeubel. De verdieping is grotendeels voorzien van kunststof kozijnen met dubbele en HR++ beglazing.
Tweede verdieping
Via een vaste trap bereik je de tweede verdieping. Hier vind je een overloop met opstelplaats voor de wasapparatuur en de technische installaties, waaronder de hybride warmtepomp (2020) en de Remeha cv-ketel (2011, eigendom). Daarnaast is hier een ruime vierde slaapkamer met daglichttoetreding.
Tuin
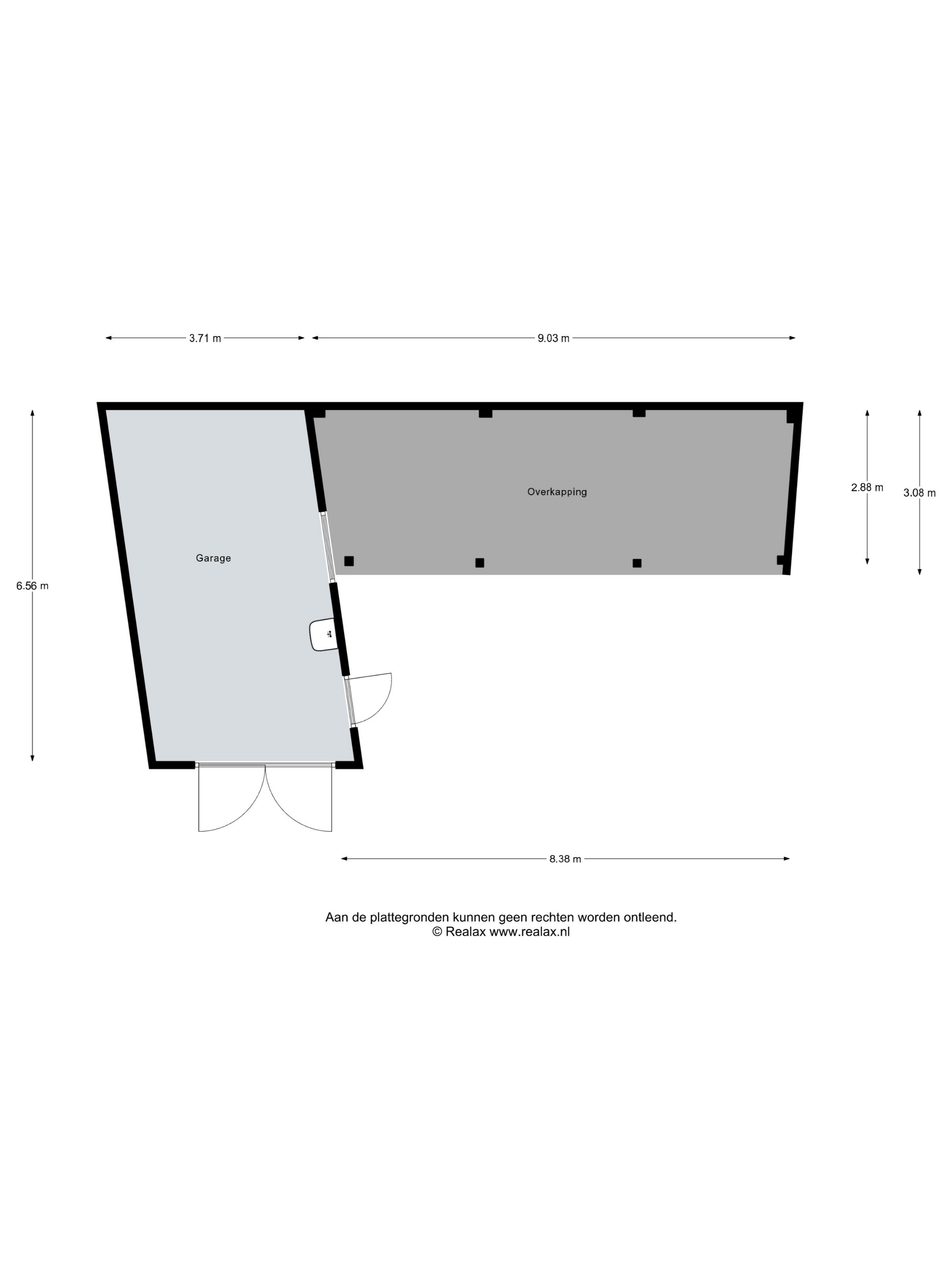
De woning beschikt over een voortuin, zijtuin en een fraai aangelegde achtertuin van circa 105 m², gelegen op het noorden. Achter in de tuin bevindt zich een in 2020 gerealiseerde overkapping met wand isolatie en krachtstroom. De tuin is bereikbaar via een achterom. De verlengde vrijstaande stenen garage is voorzien van elektra en water. Parkeren kan op eigen oprit en in de straat.
Bijzonderheden en kenmerken:
– 4 slaapkamers;
– keuken vernieuwd in 2020;
– toiletruimte vernieuwd in 2020;
– 10 zonnepanelen (2020, oost-west);
– hybride warmtepomp (2020) en cv-ketel (2011, eigendom);
– vloer-, muur- en dakisolatie (deels na-geïsoleerd);
– grotendeels kunststof kozijnen met dubbel en HR++ glas;
– verlengde vrijstaande garage met elektra en water;
– overkapping (2020) met wand isolatie en krachtstroom;
– eigen oprit en achterom.
Bouwjaar 1968 | Kaveloppervlakte 258 m² | Woonoppervlakte ca. 101 m² | Inhoud ca. 329 m³
– Bij deze woning is een NEN 2580 meetrapport aanwezig voor de berekening van de vloeroppervlakten.
– Tevens is er een bouwkundige keuring uitgevoerd door WoningSchouw, een landelijk erkend bouwkundig expertisebureau. Dit rapport is beschikbaar voor geïnteresseerden.
Bepalingen/artikelen in de koopovereenkomst:
– Koper en verkoper zijn pas gebonden indien beiden de koopovereenkomst hebben getekend.
– De koper is verplicht binnen 7 weken een waarborgsom/bankgarantie van 10% van de koopsom te stellen.
– Er wordt een ouderdomsclausule opgenomen.
– Voor woningen gebouwd van en vóór 1990 geldt een asbestclausule.
– Oplevering in overleg.
Een mondelinge overeenstemming tussen particuliere verkoper en koper is niet rechtsgeldig. Pas na ondertekening van de koopovereenkomst is er sprake van een rechtsgeldige koop.
Deze presentatie is geheel vrijblijvend. Aan onjuistheden kunnen geen rechten worden ontleend.
Interesse in deze woning? Schakel direct uw eigen NVM-aankoopmakelaar in.
Details van de woning
Indeling
- Woonoppervlakte
- 101 m2
- Perceel oppervlakte
- 258 m2
- Oppervlakte externe bergruimte
- 24 m2
- Inhoud
- 329 m3
- Aantal kamers
- 5
- Aantal slaapkamers
- 4
Energie
- Energieklasse
- A++
- Energielabel einddatum
- 5 maart 2036
- Isolatievormen
- Dakisolatie, Muurisolatie, Vloerisolatie, Dubbelglas
- Soorten warm water
- CV ketel
- Soorten verwarming
- CV ketel, Vloerverwarming gedeeltelijk
Buitenruimte
- Type
- Achtertuin
- Oppervlakte
- 105 m2
- Totale oppervlakte
- 200 m2
- Positie
- Noord
- Achterom
- Ja
- Kwaliteit
- Fraai aangelegd
Externe bergruimte
- Oppervlakte externe bergruimte
- 24 m2
Dak
- Dak type
- Dwarskap
- Dak materialen
- Pannen
Overdracht
- Status
- Beschikbaar
- Koopprijs
- € 440.000,- k.k.
- Aantal kamers
- 5
Bouwvorm
- Objecttype
- Woonhuis
- Soort
- Eengezinswoning
- Type
- Twee onder één kapwoning
- Bouwjaar
- 1968
- Bouwvorm
- Bestaande bouw
- Liggingen
- Aan rustige weg, In woonwijk
Voorzieningen
- Voorzieningen
- TV kabel, Buitenzonwering, Rookkanaal, Schuifpui, Glasvezel kabel, Zonnepanelen, Natuurlijke ventilatie
Kadastrale gegevens
- Gemeente: Borne
- Perceel: 2054
- Oppervlakte: 45 m2
- Eigendomssituatie: Volle eigendom
- Gemeente: Borne
- Perceel: 1152
- Oppervlakte: 213 m2
- Eigendomssituatie: Volle eigendom
Overige
- Permanente bewoning
- Ja
- Bijzonderheden
- Gedeeltelijk gestoffeerd
- Huidig gebruik
- Woonruimte
- Huidige bestemming
- Woonruimte



